Comienzan las obras de construcción del Tanatorio municipal de Yunquera con un presupuesto superior a 282.000 euros, de los que 172.000 euros serán aportados por la Diputación provincial de Málaga a través del plan de asistencia y cooperación con los municipios y 110.000 euros aportados íntegramente por el ayuntamiento de Yunquera de su presupuesto, destacando así el compromiso del equipo de gobierno por sacar adelante esta infraestructura municipal. La duración de la construcción será de 6 meses, por lo que se estima que esté finalizado antes del mes de marzo de 2015.
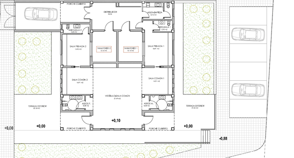
El tanatorio municipal contiene todos los servicios e instalaciones necesarias y legales y para su uso. Constará de dos salas de velatorio independientes; cada una con su respectiva sala íntima para los familiares más allegados y con un amplio salón común para familiares y amigos que puede dividirse en dos en caso de que fuese necesario.